Il comune di Jolanda di Savoia fu fondata, con il nome di Le Venezie, nel 1903, in una zona paludosa bonificata da un’opera di prosciugamento iniziata nel 1882; il nome attuale venne attribuito nel 1911, in onore della principessa Jolanda, primogenita del re d’Italia Vittorio Emanuele II che in quell’anno fece visita alla cittadina.
Urbanisticamente il comune ha uno sviluppo semplice che vede la via Principale, via Matteotti come il centro delle principali attività sociali ed economiche del paese.
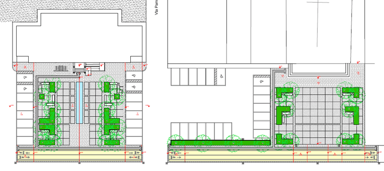
Il progetto di Riqualificazione, prevede di connotare lo spazio principale caratterizzato dal municipio e dalla chiesa attribuendogli la giusta centralità che ora risulta perduta attribuendo allo spazio un aspetto di ordine e rigore consono alla sede della autorità locale.




